关注我们


广东省人民医院拟对科技成果展厅设计改造一体化服务商进行公开市场调研,欢迎符合资格条件的供应商报名参与,项目内容如下:
一、项目名称:科技成果展厅设计改造一体化服务
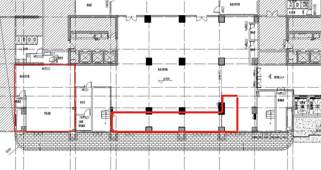
二、项目平面图:详见附件1。
三、供应商资格要求
1.服务供应商应具备《中华人民共和国政府采购法》第二十二条规定的条件,提供下列材料:
1)具有独立承担民事责任的能力:有效的营业执照(或事业单位法人证书,或社会团体法人登记证书,或其他具有独立承担民事责任的能力的有效证照)扫描件,如供应商为自然人的需提供自然人身份证明扫描件。
2)具有良好的商业信誉和健全的财务会计制度:提供财务状况报告或基本开户行出具的资信证明复印件。
3)有依法缴纳税收和社会保障资金的良好记录:提供依法缴纳税收和社会保障资金的相关材料复印件(如依法免税或不需要缴纳社会保障资金的,提供相应证明文件)。
4)履行合同所必需的设备和专业技术能力:须提供下列任意一项证明材料:①提供《政府采购供应商资格信用承诺函》(自拟);②提供“具备履行合同所必需的设备和专业技术能力”的承诺函(自拟)。
5)供应商未被列入“信用中国”网站“记录失信被执行人或重大税收违法失信主体或政府采购严重违法失信行为”记录名单;不处于中国政府采购网“政府采购严重违法失信行为信息记录”中的禁止参加政府采购活动期间(以资格审查人员于响应截止时间当天在“信用中国”网站及中国政府采购网查询结果为准,如相关失信记录已失效,供应商需提供相关证明资料)。
四、报名资料要求:资料按以下类型压缩文件发送邮件附件:
1公司资质材料
2.相关实施案例(至少一例)
五、资料递交方式:
1.将报名资料电子版发至指定箱:qiujun@gdph.org.cn,截止日期以邮件发出时间为准;邮件主题命名格式:报名资料(科技成果展厅设计改造一体化服务商)+公司名称;附件命名格式:科技成果展厅设计改造一体化服务商+公司简称+文件名称。
2.报名资料使用A4纸打印,加盖公章,密封送达(非邮寄):广州市中山二路106号广东省人民医院办公楼602室。联系人:邱老师,电话:020-83827812-20606;资料收集人:卢老师。
六、注意事项
1.各供应商必须按项目需求如实制作方案并进行报价,杜绝弄虚作假,胡乱报价,各供应商报价一经确认禁止更改。
2.项目严禁各供应商进行恶意串通、恶意竞争或其它违规行为,一经查实,将列入供应商黑名单。
3. 项目严禁单位负责人为同一人或者存在控股、管理关系的不同单位报名参加同一采购项目,一经查实,将取消该项目报名资格、作废该项目采购结果,并报医院招标与采购管理中心将有关单位列入供应商黑名单。
4.公告截至日期后递交的报名及报价资料无效。
七、报名事项
1.报名时间:自本调研公告发布起14日内
2.联系人:邱老师,联系电话:020-83827812-20606
附件1
设计改造区域为红色框部分